Location: Syracuse, New York
Instructor: Nina Wilson, ARC 322 (Systems II)
Date: Fall 2023
Collaborators: Joyce Lin and Alexander Musau
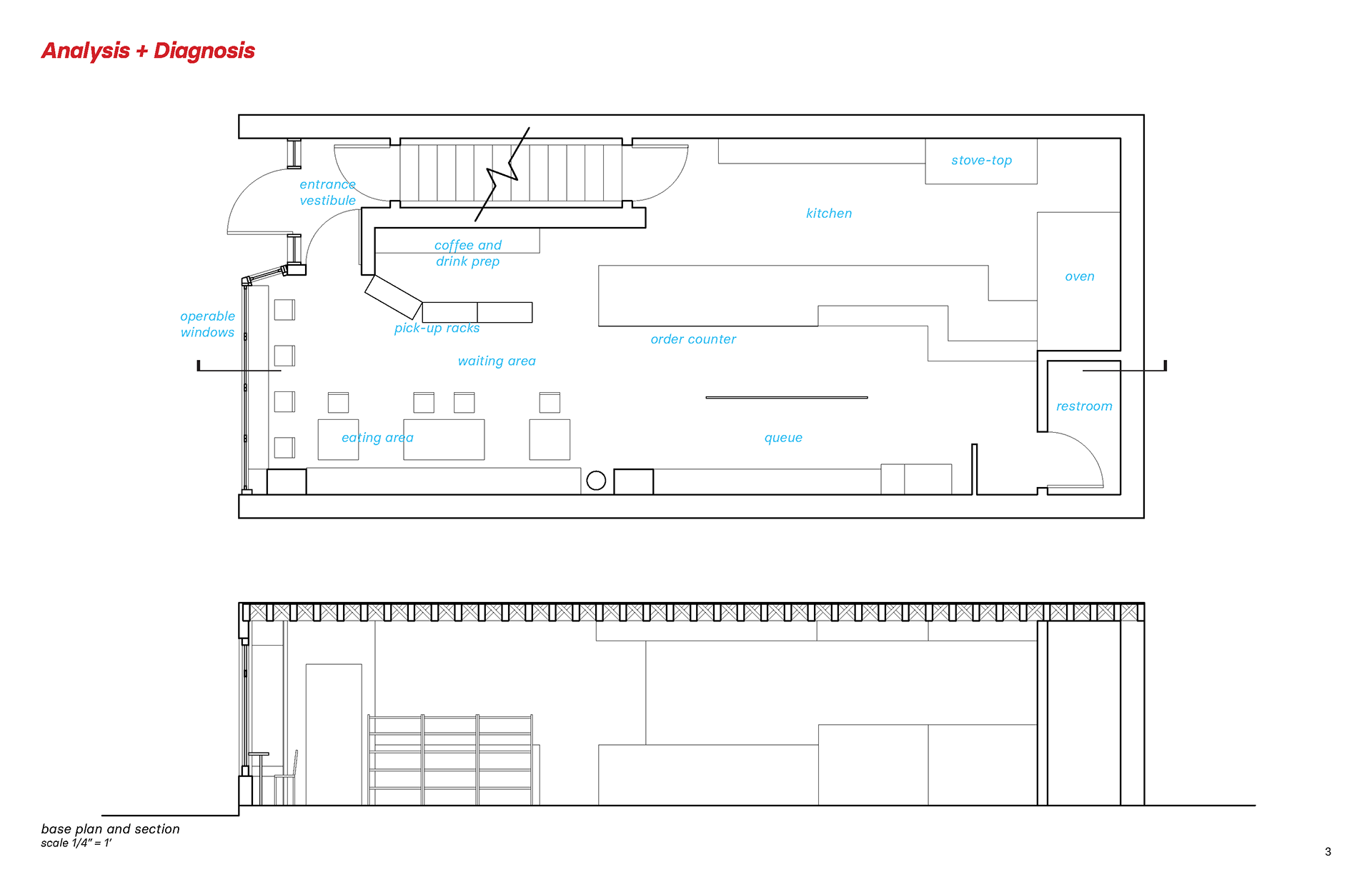
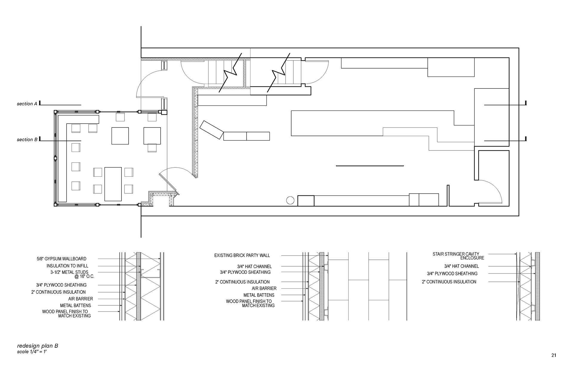
In order to mitigate the cold draft through openings, our retrofit design pays extra attention to airtightness. The PHIUS standard for airtightness is 0.060 CFM per ft making up the basis for our proposal for airtightness. We expect that this will noticeably increase thermal comfort in the space. Considering that customers move in and out of the space often, decreasing draft at openings is essential to mitigating the negative thermal effects of these openings. In an attempt to further increase thermal comfort, the thermal capabilities of the walls and windows have been thoroughly considered. PHIUS lists these as essential for our region and recognizes that this has an impact on safety, health and comfort (three of their core standard principles). We have found windows that have a relatively high T value and solar heat gain coefficient (SHGC). The window of choice is the Zenith Series ZR-6 from Alpen with the following details:
U-value - 0.14
R- value - 7.1
SHGC - 0.46
VT - 0.56
This performance is in line with PHIUS standards for a passive retrofit project in our region.
U-value - 0.14
R- value - 7.1
SHGC - 0.46
VT - 0.56
This performance is in line with PHIUS standards for a passive retrofit project in our region.















