Location: Syracuse, NY
Instructor: Matthew Ragazzo, ARC 108
Date: Spring 2022
Ideas of form, spatial agency, facade, and materiality culminated in the production of this work as a proposition for an art studio and gallery in downtown Syracuse, New York.
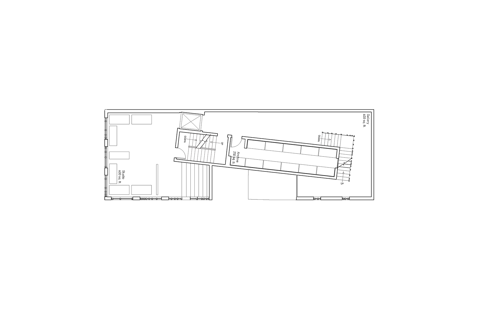
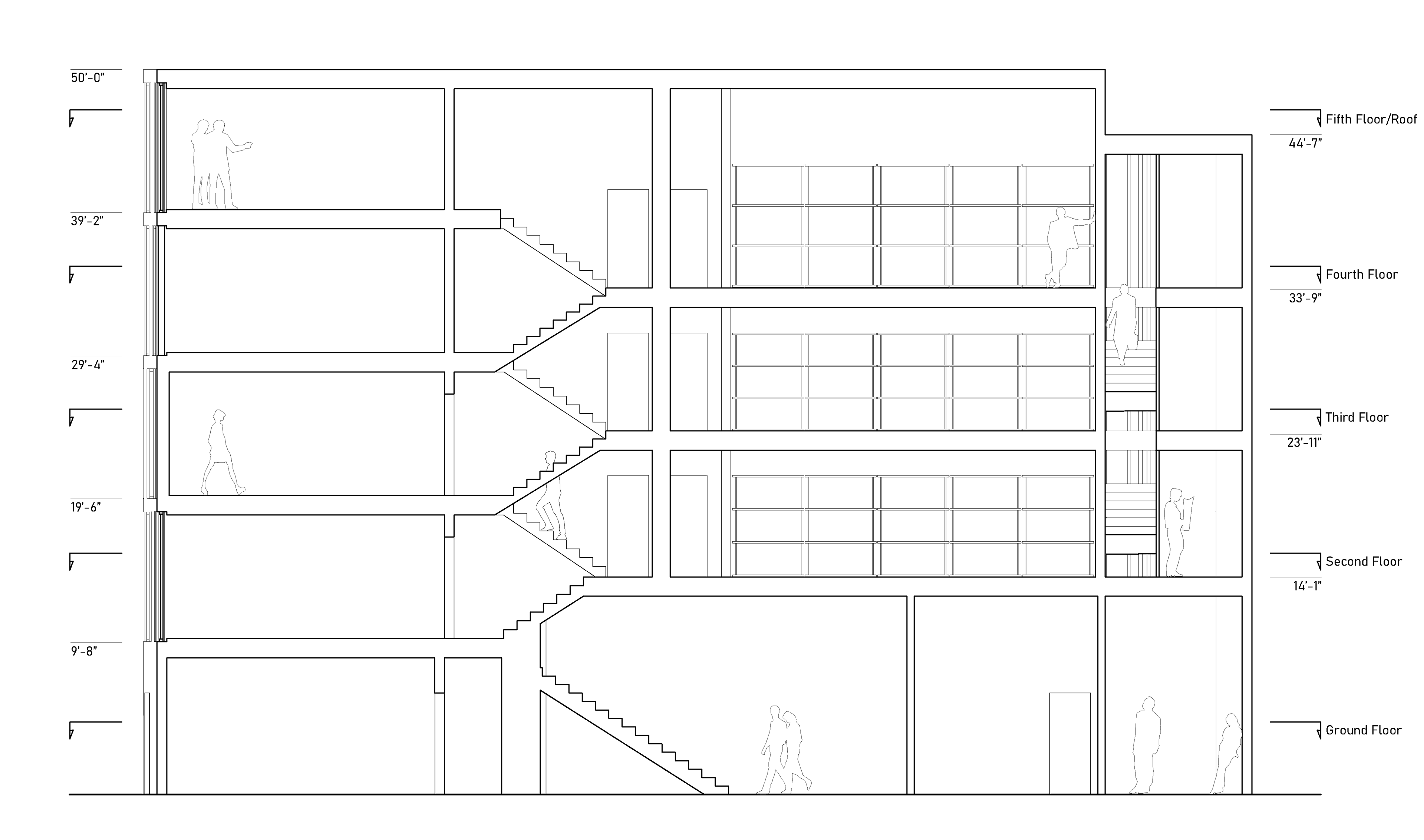
In this design, there was an interrogation of dichotomies of irregular vs. regular, including a central, rotated archive around which studio and gallery space are separated. Circulation occurs through this volume, forcing the visitor to interact with the normally hidden archive in a profound way. By splitting the studio and gallery, the volume also allows for sectional difference as floors are staggered between the two programs, providing further distinction.
The facade revolves around ideas of solid vs. void, utilizing a patterning derived from radial symmetries. Solid and void are then filled dependent upon program, with the more private and light-sensitive gallery receiving less light and the more public and light-dependent studio receiving more light.
In this design, there was an interrogation of dichotomies of irregular vs. regular, including a central, rotated archive around which studio and gallery space are separated. Circulation occurs through this volume, forcing the visitor to interact with the normally hidden archive in a profound way. By splitting the studio and gallery, the volume also allows for sectional difference as floors are staggered between the two programs, providing further distinction.
The facade revolves around ideas of solid vs. void, utilizing a patterning derived from radial symmetries. Solid and void are then filled dependent upon program, with the more private and light-sensitive gallery receiving less light and the more public and light-dependent studio receiving more light.










