ayrton laucks
architecture
research
photography
writing
ai imagery
about
ayrton laucks
architecture
research
photography
writing
ai imagery
about
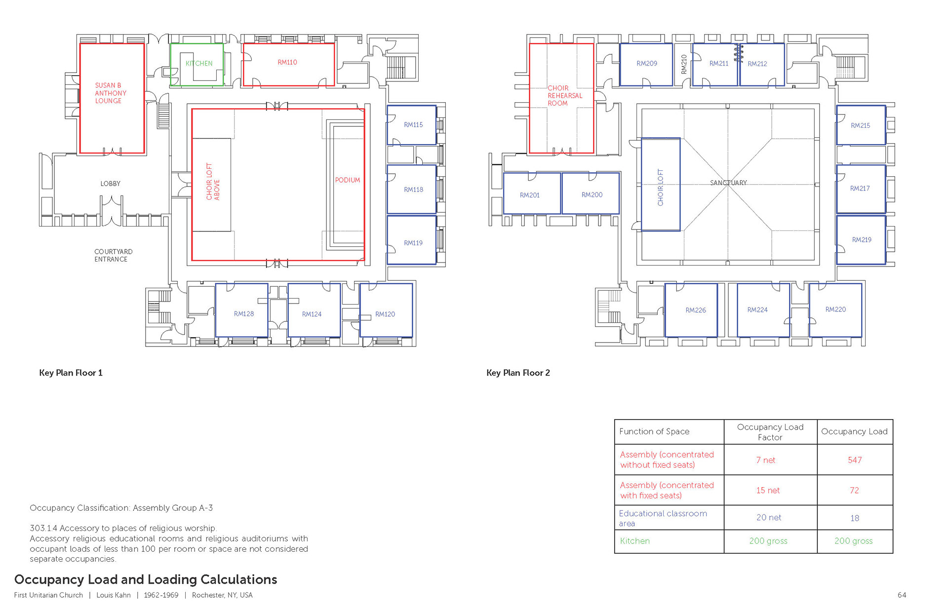
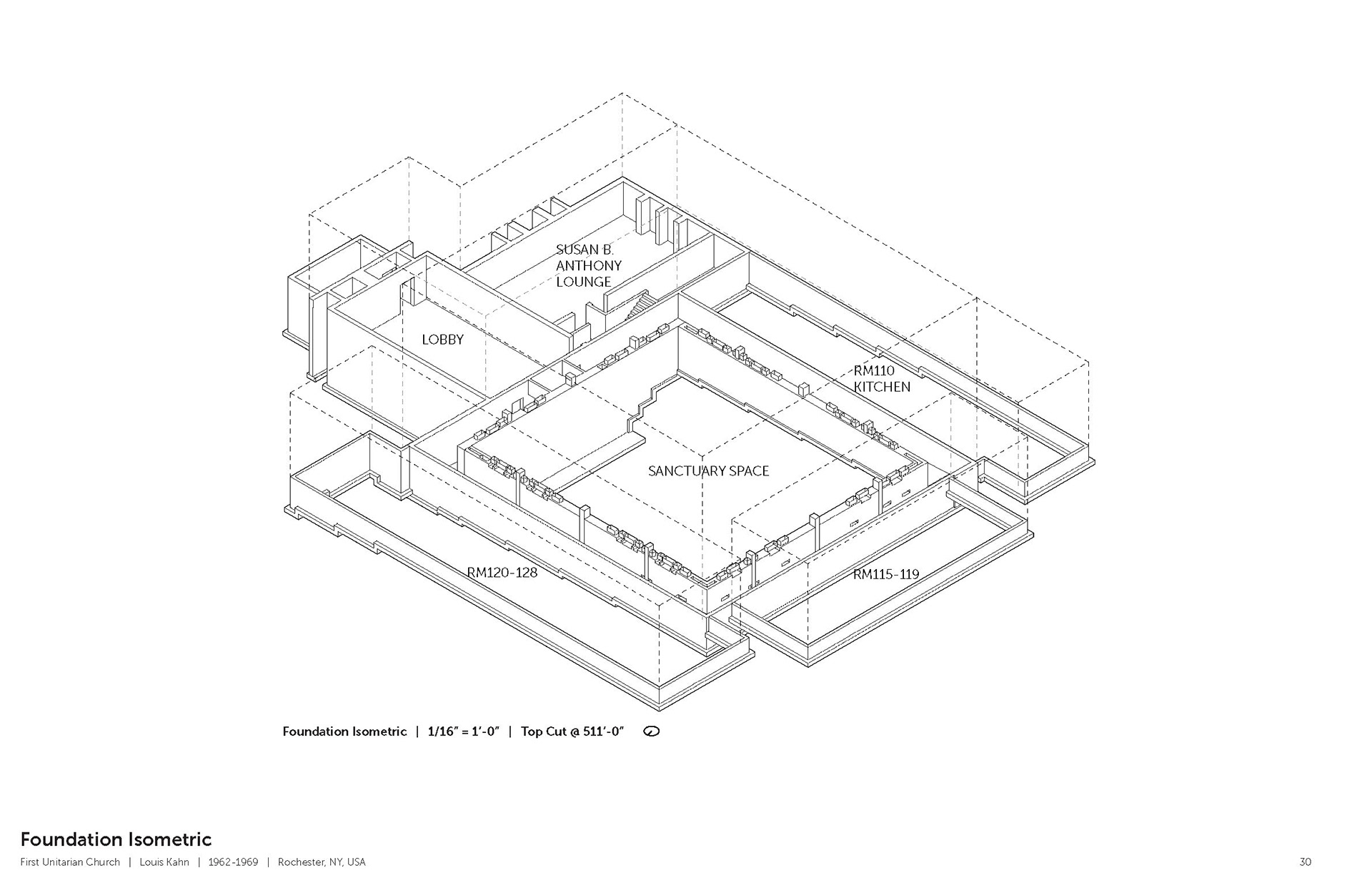
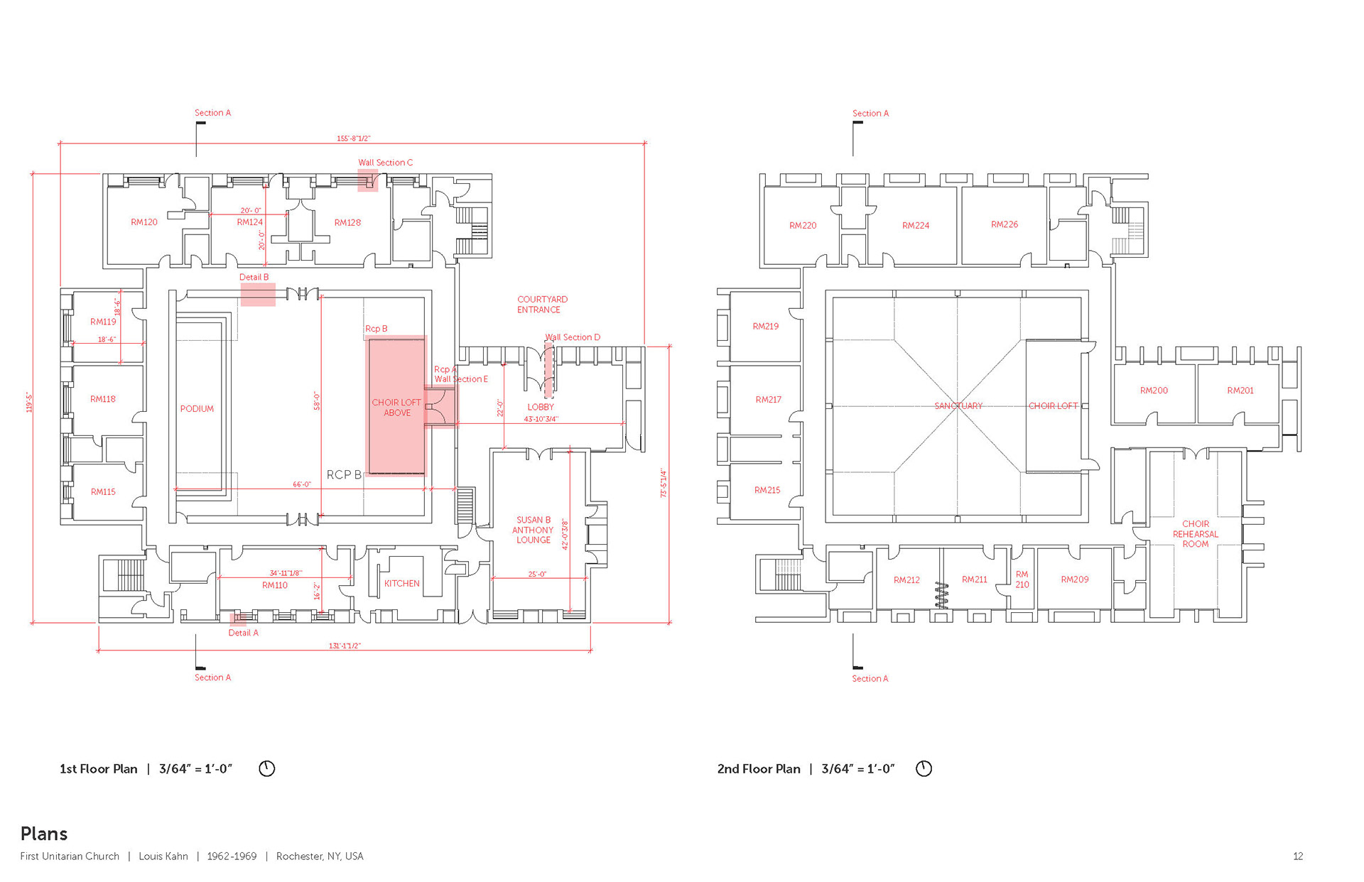
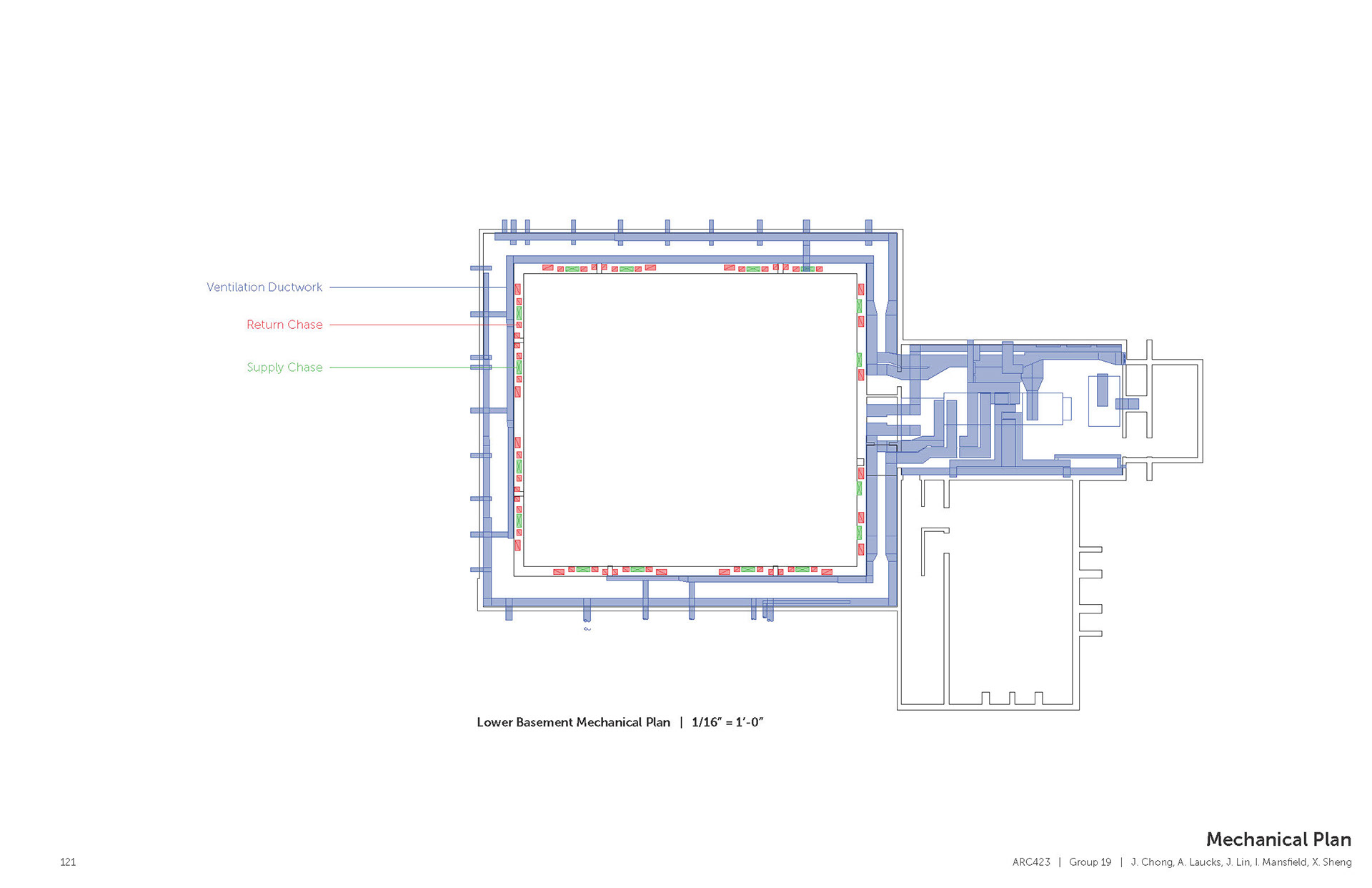
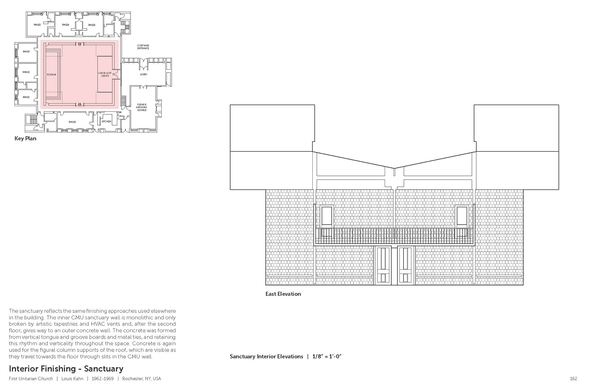
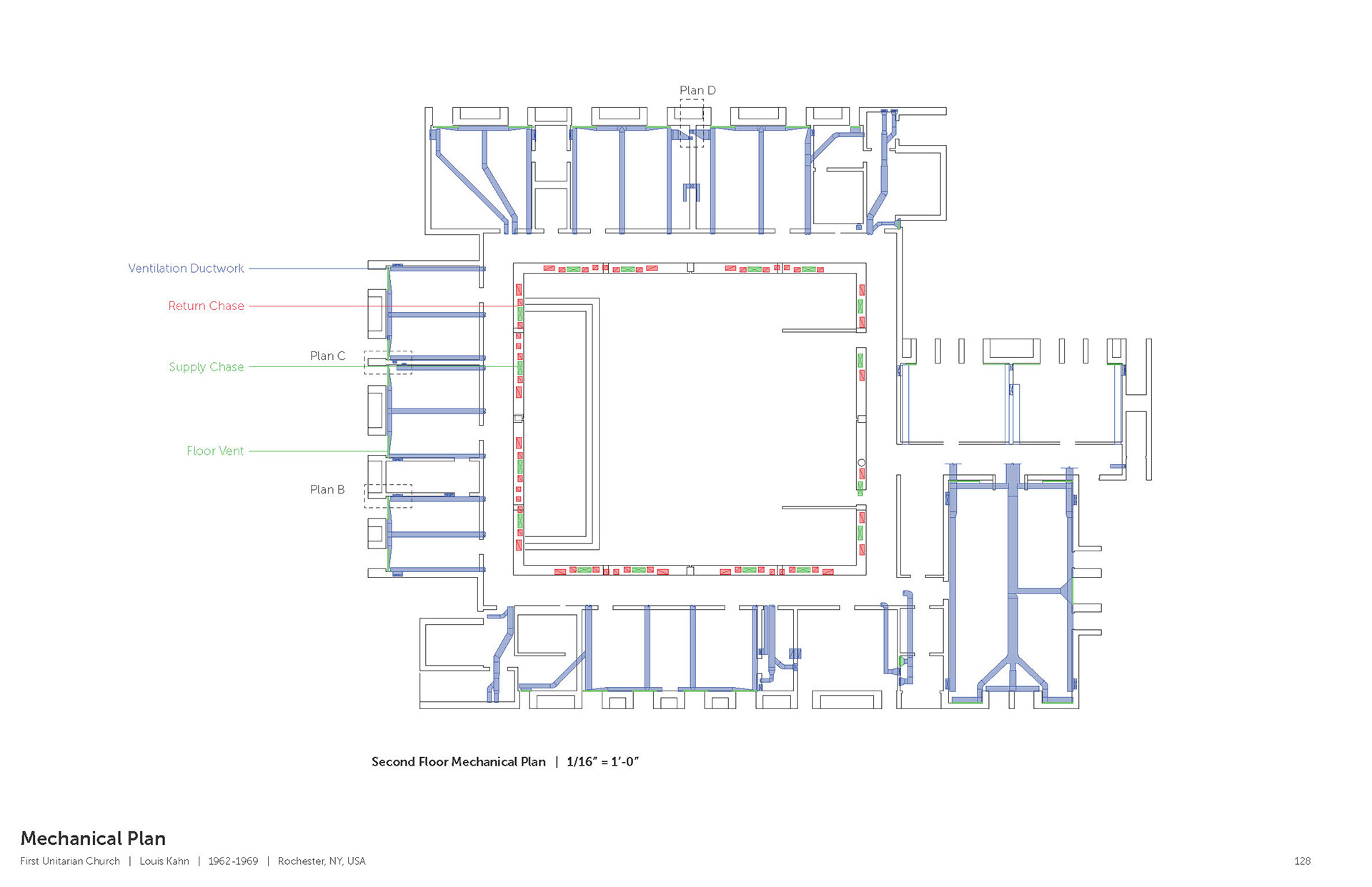
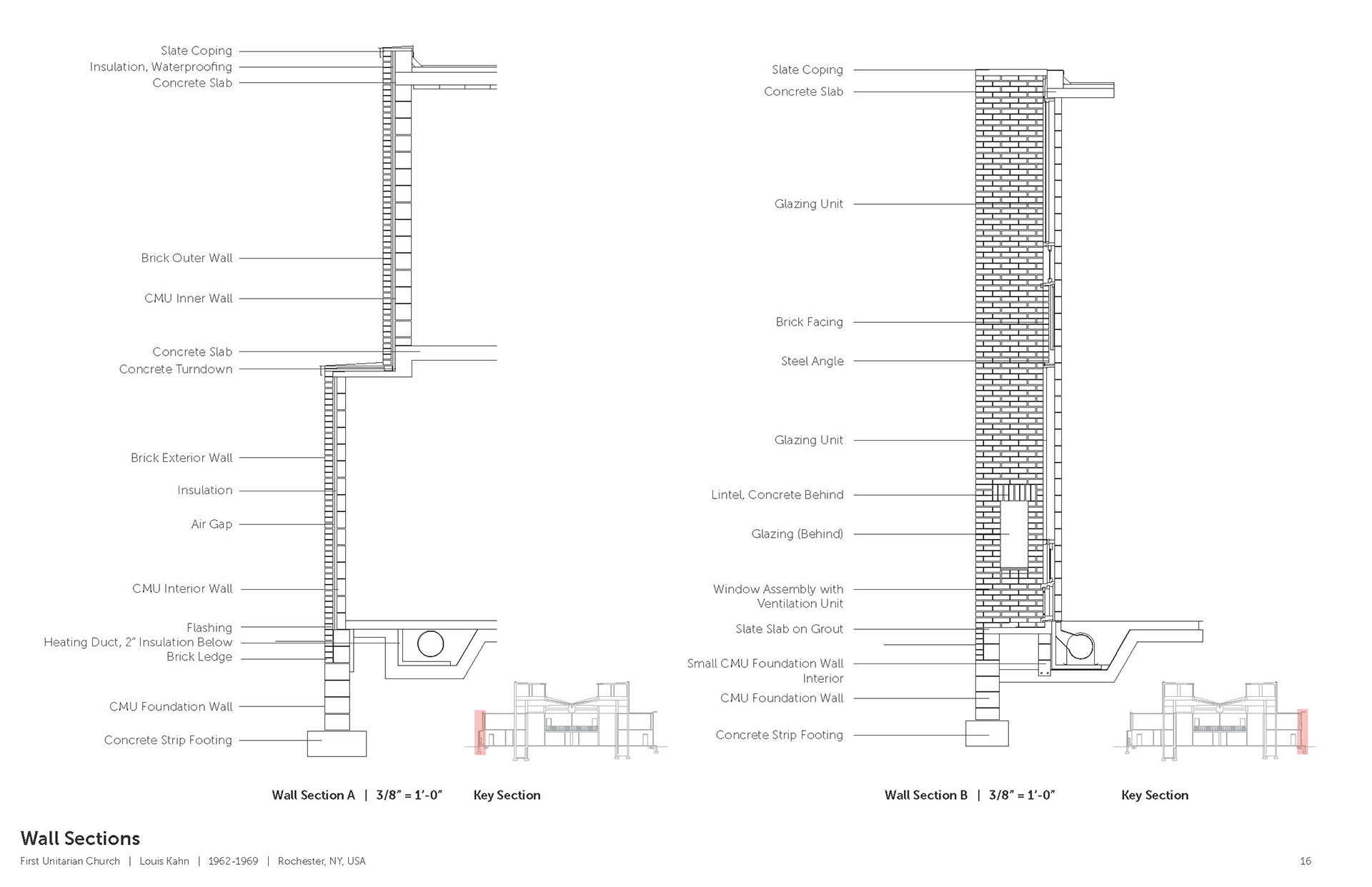
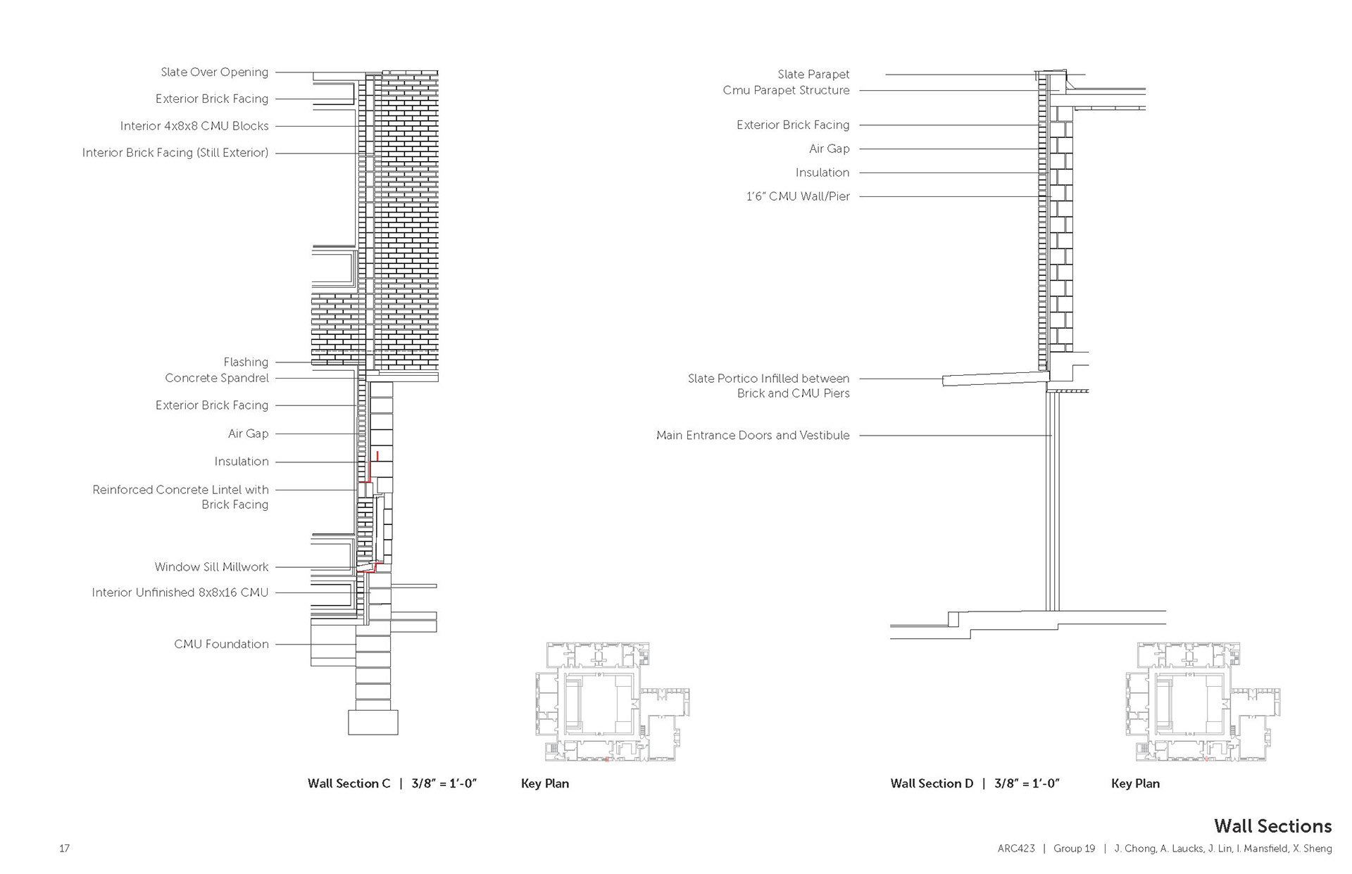
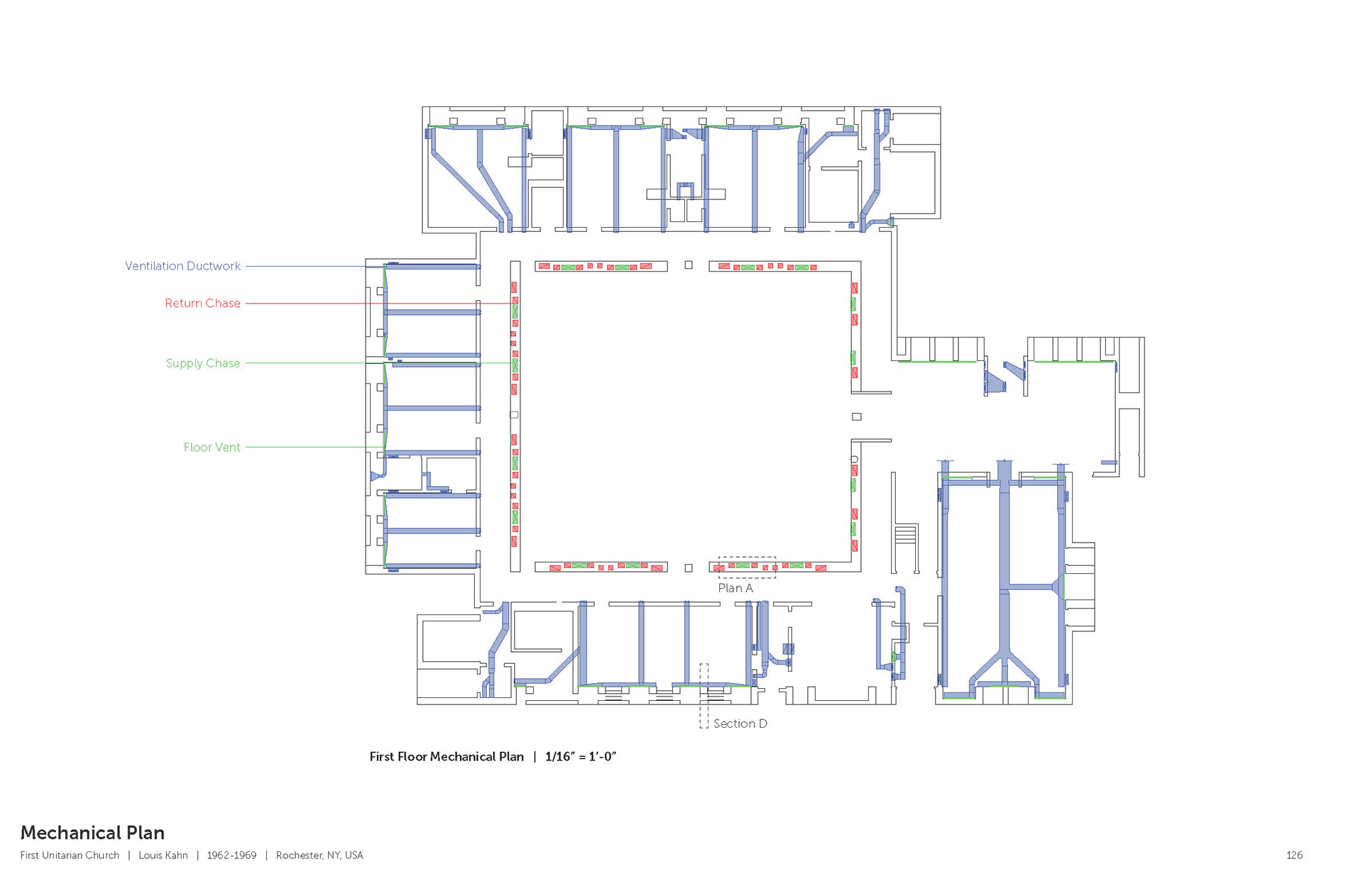
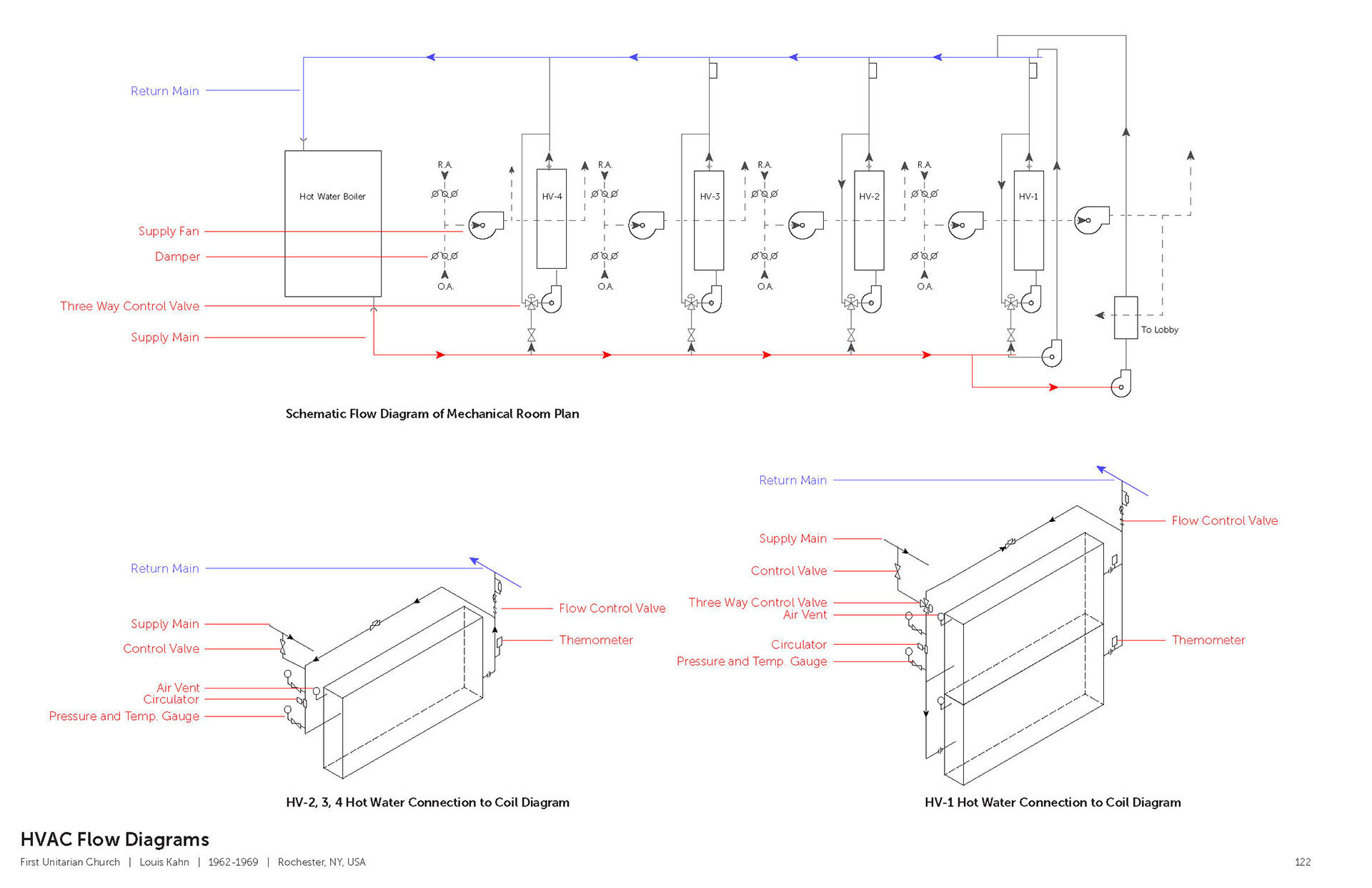
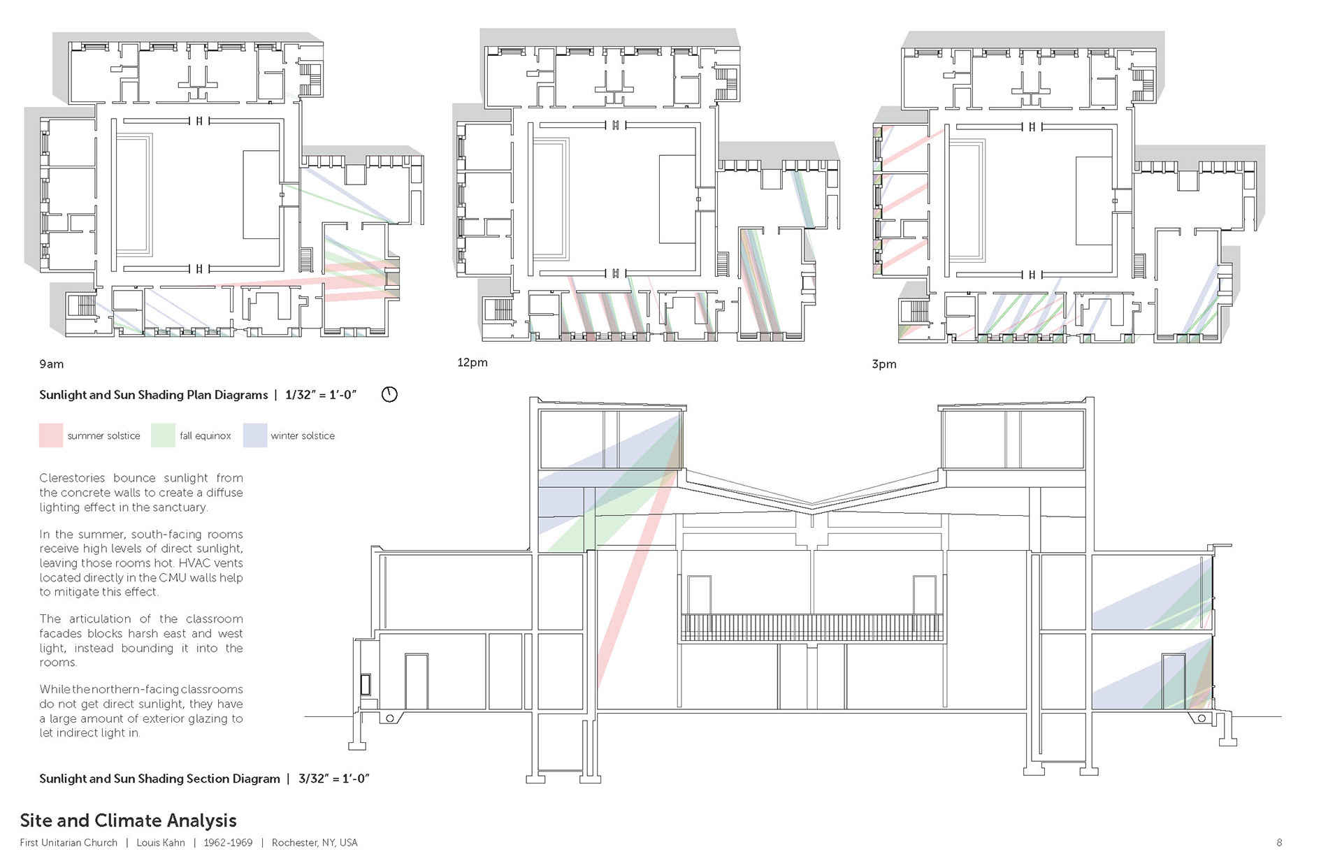
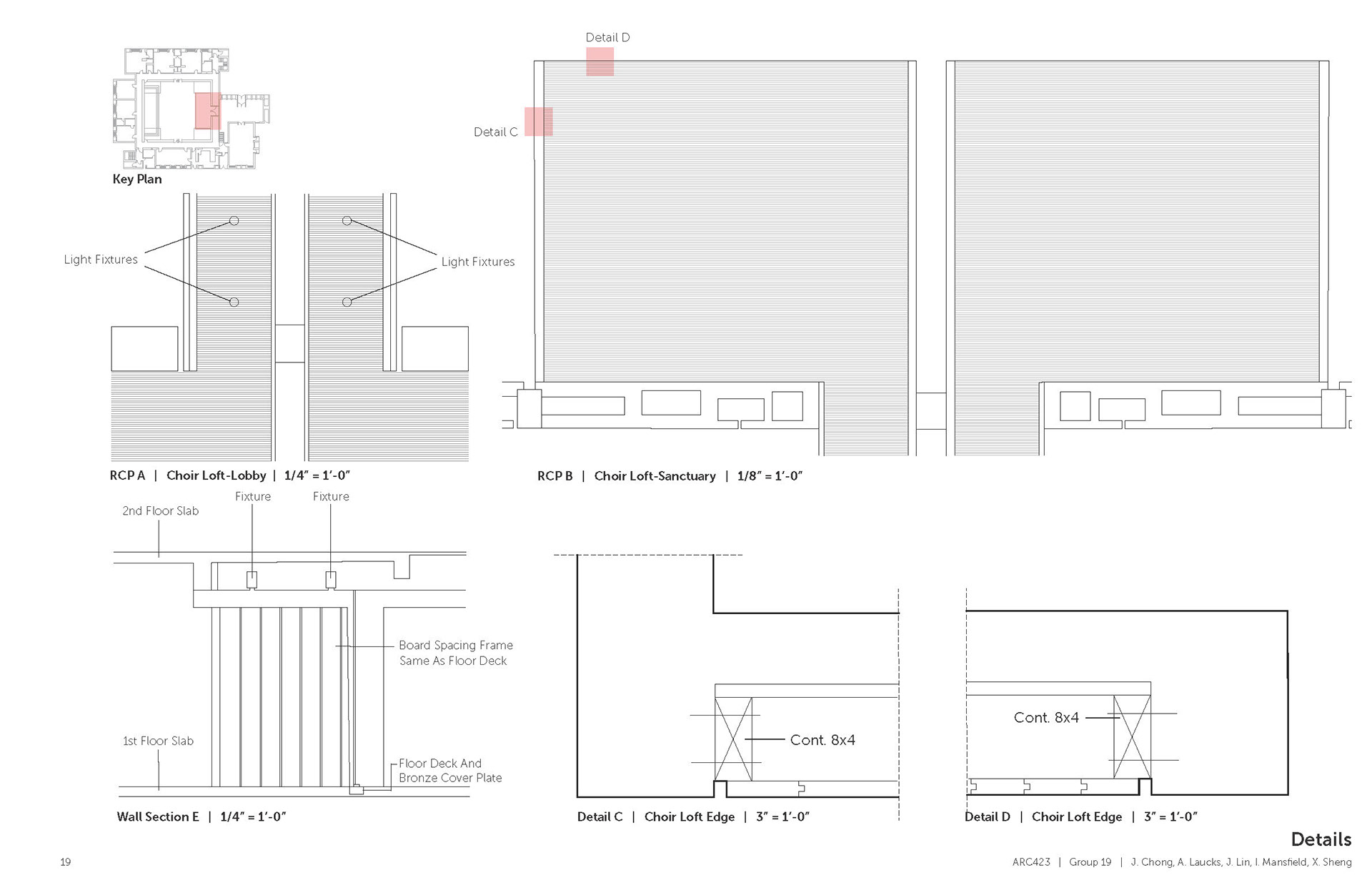
First Unitarian Church: Building System Analysis
Semester: Spring 2025
Instructor: Hannibal Newsom, Lauren Scott
Collaborators: Jacob Chong, Joyce Lin, Isabella Mansfield, Xian Sheng